Ficha
Oportunidad Única: Local Comercial de Obra Nueva en el Corazón de Cunit
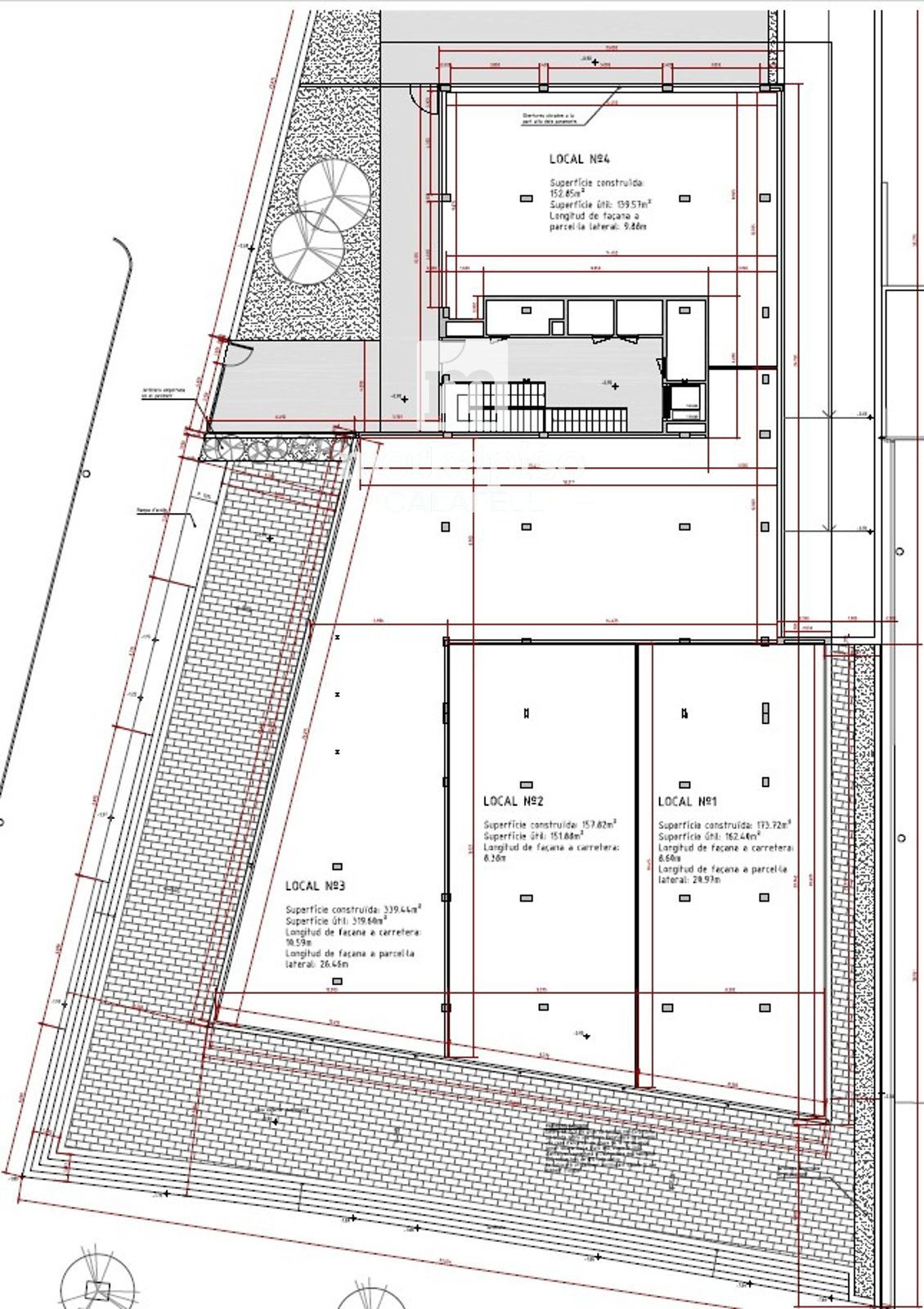
Cunit - REF. 2843

173,72 m2
venta: 310.000 €
Descripción

Oportunidad Única: Local Comercial de Obra Nueva en el Corazón de Cunit

¿Buscas el lugar perfecto para materializar tu proyecto empresarial? Presentamos este espectacular local comercial en obra nueva, ubicado estratégicamente en la Carretera General C-32, la arteria principal y de mayor visibilidad de Cunit.

Características Principales

El local se entrega en formato de obra civil, permitiéndote personalizar cada rincón y decorar desde cero según la identidad de tu marca.

Superficie Amplia: Dispone de 173,72 m² construidos (162,40 m² útiles), ofreciendo un espacio diáfano y versátil.

Gran Fachada: Sus 8,30 metros de fachada lineal son el escaparate ideal para captar la atención del constante flujo peatonal y de vehículos.

Flexibilidad Total: Al ser una entrega en bruto, ahorras en costes de demolición y puedes diseñar la distribución, instalaciones y acabados a tu medida.

Cunit: Un Enclave Estratégico en la Costa Dorada

Ubicado en la comarca del Baix Penedès, Cunit no es solo un destino vacacional, sino un municipio con una comunidad activa y en crecimiento durante todo el año.

Ubicación y Conectividad: Situado en el límite entre Barcelona y Tarragona, goza de una comunicación excelente a través de la C-32 y la AP-7. Es un punto de paso obligado que garantiza una alta exposición comercial.

Entorno Dinámico: El municipio combina la tranquilidad de sus playas de arena fina con un centro urbano moderno que ofrece todos los servicios: colegios, centros médicos y una variada oferta gastronómica.

Potencial de Crecimiento: Cunit ha experimentado un aumento constante de población residente, lo que se traduce en una demanda creciente de nuevos servicios, comercios y espacios profesionales.

Ideal para: Franquicias, centros de estética, clínicas especializadas, despachos profesionales o restauración con diseño de autor.

Características
Precio Venta 310.000 €
Precio/m² 1.784
Año de construcción 2026
Construidos 173,72 m2
Útiles 162,40 m2
Estado Obra Nueva
Calificación Energética Exento
Escalas de eficiencia



Contáctanos

Si deseas más información sobre esta propiedad, por favor, rellena el formulario.

 Sí, he leído y/o acepto las Condiciones de uso y la Política de privacidad
Inmuebles similares:
 
299.000 €
Ref. 2563  177 m2
Local Comercial en venta en Segur De Calafell y con 172 m2.